Barrio Obligado, la Historia

Corria el año 1951, Los primeros pobladores de lo que hoy denominamos Barrio Obligado, se ubicaron en un territorio conocido entonces como Villa Maside que se extiende desde la calle Gaspar Campos hasta la calle Río Limay, y desde el Rio de las Conchas (hoy Río Reconquista) hasta la calle Pío Colivadino (hoy Jujuy). Se trataba de unas 28 manzanas ubicados alrededor de una plaza. Las calles eran de tierra y la infraestructura era muy limitada: no habían veredas y la iluminación era a velas o farol porque no había tendido de cables para luz eléctrica. Poco tiempo después se tendió el primer cableado desde Gaspar Campos, extendiéndose por el costado de Jujuy hasta la calle Río Limay.  La Familia Jara Fue una de las primeras en llegar al lugar, Lo siguieron Olga y Paco Caseres, y Roberto Pacheco. En los fondos del barrio estaba emplazada la estancia «El Gallo Rojo», rodeada de empalizadas y dedicada a la cría de caballos. La estancia pertenecía a la Familia Acosta del Sel.
En el Año 1938 comenzó a construirse la primer escuela de educación básica entre las calles Gualeguay y Catamarca Más tarde y debido a las constantes inundaciones que sufrió el barrio es trasladado al actual emplazamiento en la zona denominada como «del medio» Junto a la escuela se construyó un centro de encuentro vecinal denominado Sociedad de Fomento Villa Maside, mejor conocido por los vecinos como «El Club». Allí se llevaban a cabo actividades de diversa índole: Desde campeonatos de truco y bailes hasta la celebración de las Misas. La primera obra de la Sociedad de Fomento fue hacer bloques de cemento para las veredas con las iniciales SFVM El barrio comencé a ser visitado por un sacerdote Palatino de nombre Storni que incidió en la organización de la Sociedad de Fomento y en iniciativas vinculadas al surgimiento de la primera escuela (No.30) que comenzó a construirse en las inmediaciones del predio que servía como plaza central del barrio. Inicialmente la escuela consistía en una edificación de madera a la que posteriormente se le sumaron dos tranvías que cumplieron la función de autos.  A partir de 1959 abrió sus puertas la guarderia «Nuestra Señora de la Merced» que funcionaba gracias al esfuerzo de Susana Barthalot y Mercedes Mackinlay. Por ese entonces comenzó a entrar al barrio el primer colectivo que lo unirá con Bella Vista. Los vecinos originarios de Villa Maside eran en general trabajadores asalariados empleados en los centros industriales de Morón y San Martin. La vida en el barrio en esa época ponderar tanto los fines de semana como las fiestas especiales. Asi mientras sábados y domingos las familias iban a pasar el dia al llamado en ese tiempo Río de las Conchas, las fechas tradicionales eran ocasiones para el festejo colectivo. Los vecinos recuerdan la fogata de San Pedro y San Pablo y la quema del muñeco, así como otras estampas de la vida barrial: las batatas asadas y el repartidor de leche “Los dias domingos era común ir al Rio, cuyas aguas (dejaban) ver las piedras del fondo. Las mujeres se juntaban a tomar mate y los chicos cazábamos pajaritos…y andábamos. Eran tiempos en que la Gaspar Campos tenía dos escasas manos y pasaba una sola linea de colectivos.”

2.Etapa de Urbanización y Poblamiento: 1960 – 1980

Los nuevos vecinos que se radicaron en el barrio durante la década del sesenta también tendieron a ser asalariados industriales empleados en los centros de Morón y San Martin. Las tareas colectivas de los vecinos del barrio se enfocaron en tratativas para conseguir servicios de electricidad asfalto, etc. En términos de infraestructura y servicios básicos, esta etapa marca el crecimiento urbanístico del barrio, pero se vio atravesada por las trágicas consecuencias de las inundaciones del Rio Reconquista. A mediados del ’60 una de estas catástrofes obligó a trasladar la escuela a una zona más alta (en la ubicación de la actual EGB No. 13), donde posteriormente también se reubicaría la Sociedad de Fomento. En 1967 se registro uno de las inundaciones más atroces, obstaculizando el desarrollo del joven» borro y sugiriendo que la situación podría repetirse a lo largo de los años No cabe duda que los desbordes del Río Reconquista, tanto los ocurridos en esta etapa como los que efectivamente se registraron en etapas subsiguientes han quedado grabados en la memoria de los vecinos como hitos de la historia de su barrio. “En el año 67 se inunda toda esta zona que estaba a nivel de dos metros y medio debajo de Gaspar Campos Hoy está nivelado, se niveló unas cuadras pero después cae el barrio, es un pozo. Aqui llegó más o menos a 2,5 metros de agua, De donde nosotros vivíamos llegó a 2,6 metros. La casa donde nosotros vivimos no se veía, tiene dos metros de alto bueno ahí no quedó nada, todos los vecinos perdieron todo.
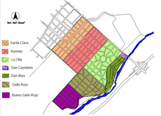
 La [inundación] grande llegó hasta Irusta. En ese momento fue declarado zona militar, nadie podía entrar. Mucha gente no quería salir. Nos quedó en la mente… en el barrio obligado y obligados a quedarnos. Esto era un mar” Frente a esta situación, en el período de 1960 1980 se manifestaron dos respuestas que incidirían notablemente en la historia del lugar. En primer lugar, comenzaron a expandirse los límites del barrio ya que muchos vecinos, en su intento por alejarse del Río, se trasladaron hacia la calle Irusta. En segundo lugar, la acción conjunta de los vecinos se afirmó como el elemento imprescindible para la obtención y crecimiento de la elemental infraestructura barrial. Esta segunda respuesta generó un período que en gran parte contribuyó al surgimiento de un cierto «imaginario» sobre la etapa fundacional del barrio Obligado. Es decir, muchos vecinos parecen compartir una cierta idea sobre cómo era el barrio de esta época, al cual caracterizan como un lugar donde todos se conocían, vivian situaciones en común y cooperar unos con otros para sobrellevar los problemas que confrontar , buscar algunas soluciones y desarrollar el barrio. Las transformaciones territoriales coincidieron con cambios en el perfil de la población. A finales de la década del ’60 comenzaron a aparecer los primeros inmigrantes uruguayos, quienes ejercerían un fuerte liderazgo social. El barrio, como tantos otros del Gran Buenos Aires, recibió también una importantísima migración interna mayormente procedente de las provincias de Entre Rios, La Pampa, Santiago del Estero. A la par con el crecimiento poblacional comenzó a edificarse en la zona del centro el denominado Barrio Cofi (sigla que tenía un cartel a la entrada de la ruta) subvencionado por un plan de viviendas del Banco Provincia. El mismo se extendía desde Gaspar Campos hasta Flaubert, y desde Jujuy (anteriormente Pío Collivadino) hasta Salta. Por otro lado entre 1972 y 1973 comenzó el loteo del sector Kanmar en parcelas de un tamaño superior a los de otras zonas porque fueron concebidas para residentes de mayores recursos económicos. El sector pasaría a ser ocupado por vecinos de ingresos medios-altos y altos. Paulatinamente el barrio comienza a ser reconocido como Barrio Obligado. Ya para finales de la década comienzan a arribar al barrio residentes de las denominadas villas miserias de Capital Federal(como consecuencias de expulsiones y desalojos poblacionales en el marco de la politica urbana de la dictadura militar)como también de grupos provenientes de zonas marginales de Morón.Se produce así entre otras cosas, un veloz crecimiento poblacional en el conurbano bonaerense. Por otro lado se van consolidando las instituciones barriales que surgieron durante la etapa fundacional y van apareciendo algunas nuevas La guardería Ntra Sra. de la Merced surge en dicho contexto vinculada a grupos de personas relacionadas con la fundación Emaus(la cual también habría de aportar al crecimiento de otras instituciones como el Jardin de Infantes) e inicia una tarea que se extenderá hasta la actualidad brindando un importante servicio a las familias con dificultades económicas y en condiciones de pobreza. En 1969 un grupo de vecinos organizados en la Sociedad de Fomento (que comienza ser denominada como «Rafael Obligado») impulsan los asfaltos y la delimitación de veredas. En 1975 un padre Redentorista de nombre D. Borda logró que se construye una capilla en un lote prestado.  En el mismo año se habilito el espacio de la futura plaza en el lote que la misma ocupa en la actualidad. En la Sociedad de Fomento comenzó a funcionar la primera biblioteca pública del barrio así como una salita de primeros auxilios. Hemos visto que en esta etapa se diversificó notablemente el perfil de l población del barrio. Para los sectores medios y medios bajos la salida laboral sigue estando relacionada con empleos asalariados fuera del barrio. Entre las mujeres comienza a cobrar relevancia el empleo domestico en zonas cercanas de Bella Vista y San Miguel. Por otro lado, entre los sectores de menores ingresos, ubicados en el área de La Olla (entre las calles Gaspar Campos Jujuy y Gualeguay) y en la ribera del Ro se registran actividades como el «cirujeo» y el acopio de residuos (metales, cartón, botellas)Fuera del comercio y el acopio de residuos no hubo ninguna otra actividad laboral en el barrio, de modo que en esta etapa el barrio continuó siendo primordialmente un lugar de residencia. La construcción del camino del Buen Aire a fines de esta etapa repercute directamente en el barrio generando nuevas preocupaciones relacionadas con los desagües del agua de lluvia.

3. Etapa de crecimiento urbano e institucional: 1980 – 1990

En esta etapa, caracterizada por el incremento de la heterogeneidad cultural y de la diferenciación social y territorial, el barrio adquirió su fisonomía actual. Veamos algunos de los acontecimientos que dieron forma a este proceso. En 1985 se produjo otra gran inundación del Río Reconquista. Para F. Forni dicho momento implica una instancia clave en cuanto al acrecentamiento de la inequidad de condiciones de las familias del barrio y la agudización de la pobreza de los sectores populares del mismo. Tras la inundación numerosas familias radicadas hasta ese momento en La Olla comenzaron a trasladarse hacia una zona más alta denominada Gallo Rojo. Un grupo de familias, con el apoyo del equipo fundador de la Guardería Nuestra Señora de la Merced, implementan el Plan Pesebre que posibilita el traslado de algunas familias hacia Mariló. Posteriormente otras avanzando rumbo al asentamiento San Ambrosio (cercano a las calles Roca e Irusta). El continuo incremento de la población migrante (tanto del interior como del exterior del país) implicó otras transformaciones territoriales. A fines de los 80 este sector poblacional comenzó su asentamiento en los terrenos vacantes continuos al Gallo Rojo, dando origen al Nuevo Gallo Rojo o, como comúnmente lo denominan los vecinos, El Fondo del barrio. Una zona que pasó a ser ocupada predominantemente por migrantes paraguayos y cerca de la cual se radicaron posteriormente migrantes bolivianos. Por otro lado, en la zona central del barrio se construyó la nueva capilla, una edificación en cemento que sustituyó la capilla de madera que había sido erigida por iniciativa del Padre Borda, fue a partir de una donacion de «Doña Gumersinda, que lega por testamento sus bienes para los mas pobres de la diocesis»  recuerda el padre Tony (Antonio Gerardo Fidalgo)  y hacia 1984 se constituye el Centro de Jubilados. En 1989 la hiperinflación se sintió fuertemente en el barrio Trayendo como consecuencia la organización de ollas populares y comedores que intentaron suplir las necesidades alimentarias de casi un 50% de la población Tal como había ocurrido en 1985 con la «gran inundación esta catástrofe amplio la diferenciación social en el barrio y precipitó el empobrecimiento de numerosos hogares del barrio. Se multiplicaron las situaciones de carencia y marginalidad como el acrecentamiento de hogares bajo la linea de pobreza y la «linea de indigencia» . El vinculo entre el desastre natural y el economico es estrecho: en la inundación fueron asistidas unas 600 familias que continuaron participando en la organización de las ollas populares durante los siguientes cuatro meses. Fue también en dichas zonas cercanas al Rio Reconquista donde se concentró posteriormente la ayuda proveniente de planes sociales: las cojas PAN, los bonos solidarios y el programa País

4.eatapa de urbanizaciones y crisis socioeconómica: 1990

No cabe duda que en la década del ’90 la infraestructura urbanística del barrio se reforzó notablemente (extensión de la zona asfaltada, alumbrado publico, circulación de nueva línea de colectivos que comunica con San Miguel y Bella Vista). Mas en esa misma década se reforzó también el patrón de diferenciación social del barrio que ha venido disgregando las zonas del mismo de acuerdo a los niveles de ingresos de sus residentes. En los fondos del barrio la consolidación de los campos relacionados al Golf Club se convierten en un límite fuertemente marcado del barrio que posteriormente se traducirá en algunas partes en el levantamiento de un terraplén y finalmente en un extenso muro. Asociando, como hemos venido haciendo hasta ahora, lo territorial con lo población, hoy podemos observar que la zona costera del barrio aún carece de alumbrado y asfaltado y es allí donde se concentran principalmente los sectores con NBI y en condiciones de indigencia. Mientras que la zona cercana a la calle Irusta concentra la población con mayores ingresos y cuenta con una calidad de servicios notablemente superior. Este proceso de diferenciación se ha agudizado en los últimos años gracias a una medida tendiente a contrarrestar las amenazas del Río Reconquista. A fines del ’90 se implementó un proyecto de Unired sobre el trazado del Río Reconquista que implica una modificación de su curso a la orilla del barrio, la cual fue posteriormente objeto de relleno. Dicho proceso «habilitar una nueva franja de tierra sobre el antiguo cauce del Río, donde han proliferado asentamientos muy precarios. A nivel laboral, el aumento de la desocupación en el Gran Buenos Aires ha incidido directamente en el barrio repercutiendo tanto en los empleos industriales como en la construcción, sector en el cual estaban insertos los grupos de migrantes externos. Indirectamente también se ha restringido el empleo femenino ya que las familias de sectores medios de Bella Vista y San Miguel han reducido notablemente sus demandas de servicios domésticos Así el agravamiento de la crisis social ha incrementado la situación de empobrecimiento y exclusión y ha profundizado la diferenciación social del barrio. Al cirujeo ya consolidado en el lugar se le han sumado en los últimos años los denominados «cartoneros», que desde el barrio se desplazan hacia centros urbanos de mayor poder adquisitivo. Ante estos hechos, las instituciones educativas (especialmente las escuelas publicas de EGB provinciales las distintas organizaciones sociales(guardería centro de jubilados, centro de salud, la biblioteca popular y otros las organizaciones religiosas (fundamentalmente la Iglesia católica con distintas actividades y proyectos y también Iglesias Evangélicas)han desplegado tareas de asistencia y contención directa en relación al problema alimentario habilitando en algunos casos comedores en distintas partes del barrio y en otros tratando de contribuir a superar las dificultades y problemas. Los programas sociales nacionales y provinciales la organización y presencia de las manzaneras, la tarea de las instituciones mencionadas y diversos grupos voluntarios de vecinos intentan coordinar acciones pero la gravedad de la situación es superadora de muchos esfuerzos. La respuesta solidaria convive con el prejuicio y la discordia. Algunos hechos de violencia en el sector El Fondo, alegadamente protagonizados por migrantes paraguayos, han alimentado nociones prejuiciosas Y discriminatorias en su contra. La «competencia» por los escasos recursos laborales y económicos también parece fundamentar muchas veces el rechazo de algunos argentinos» hacia los «migrantes», ya sean paraguayos, bolivianos, peruanos o, a veces, «provincianos». En esta última etapa registramos entonces un creciente distanciamiento entre las diversas zonas Y poblaciones del barrio. Para los que arriba denominamos «los vecinos originarios» del barrio, Obligado ha cambiado dramáticamente en su medio siglo de historia. De aquel «imaginario» (es decir, idea compartida por un grupo de personas) en el cual todos los vecinos se conocen, se apoyaban y no había problemas de seguridad ni de trabajo queda poco. En su lugar, ha emergido otro «imaginario» que caracteriza al barrio como un lugar heterogéneo y diferenciado.
  • Con informacion de «Taller II de urbanismo, Un Plan para Barrio Obligado» de Martin Muñoz
  • Revista  «Amistad» de la capilla Sagrada Familia de Barrio Obligado

 

3 comentarios sobre «Barrio Obligado, la Historia»

  1. En tu historia faltan muchas cosas. X ej. De donde salieron los fondos para construir la iglesia. Mis abuelos Barbara y Matias kollman junto a otros como Leonardo Lopez y su esposo y Teresa ortiz y su esposo hacían rifas de cosas q tejía mi abuela para poder comprar materiales aparte de las donaciones. Mi abuelo caminaba desde obligado hasta barrufaldi golpeando puertas casa x casa para vender las rifas para comprar todos los bancos de la iglesia. Hay mucho para contar de aquella época.

Deja una respuesta

Tu dirección de correo electrónico no será publicada. Los campos obligatorios están marcados con *